Building Regulation and Technical Construction Drawings & Advice
Building Regulations set out the acceptable standards for health and safety in and around buildings by imposing certain functional requirements for the design, construction and alteration of buildings. The regulations also impose certain standards to promote the energy efficiency of buildings and the needs of people with disabilities.
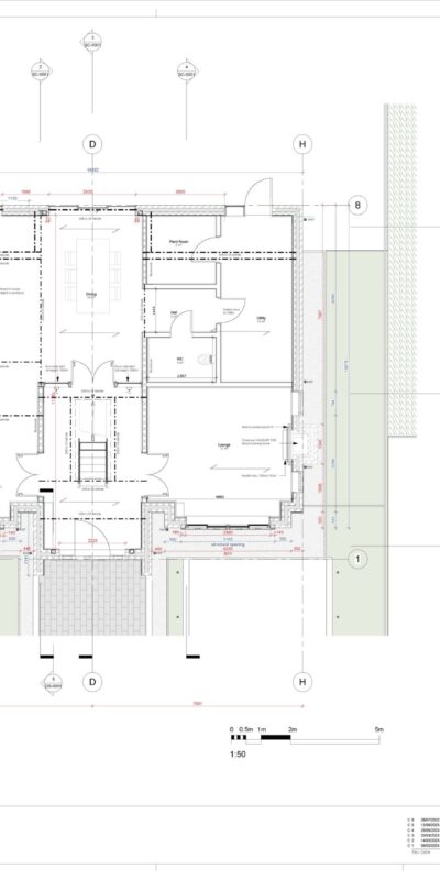
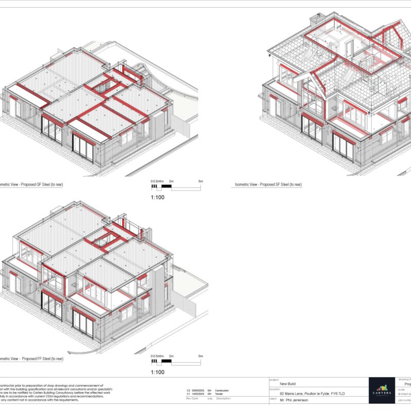
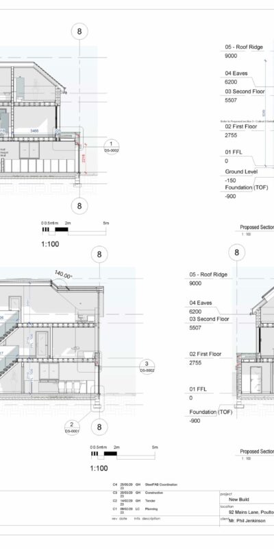
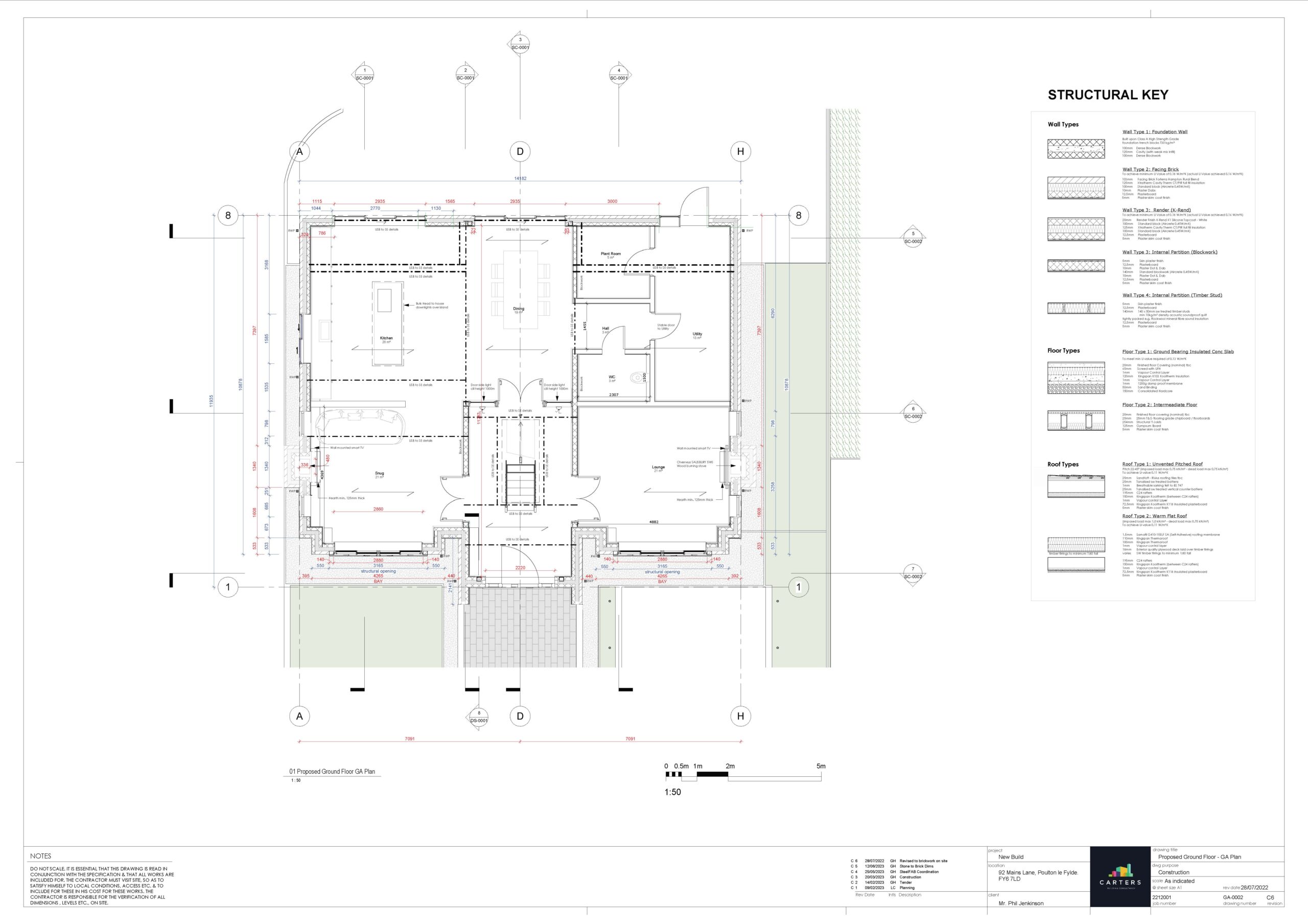
Carter’s Building Consultancy can submit your Building Regulations application. This includes technical detailed drawings including cross-section of any new proposed works similar to the example shown for a recent single storey large rear extension.
Building Regulations and Planning Consent are not to be confused. These are different application processes, under different legislation and regulated by separate Council departments.
Most alterations, extensions and new building work needs to comply with Building Regulations. The building regulations apply to many different projects from large too small. With regard to households for example this could include extensions, loft conversions, knocking through between rooms, moving or creating a new toilet or bathroom, electrical work, window replacement and converting a garage to name but a few typical projects.
Carter's Building Consultancy has an excellent technical background and understanding of how elements are constructed from hands on experience. We are technically minded and can assist with any building regulation requirement.
Get in touch to see how CBC can take your idea and bring it to reality.







































